Zgrada 2 prizemlje
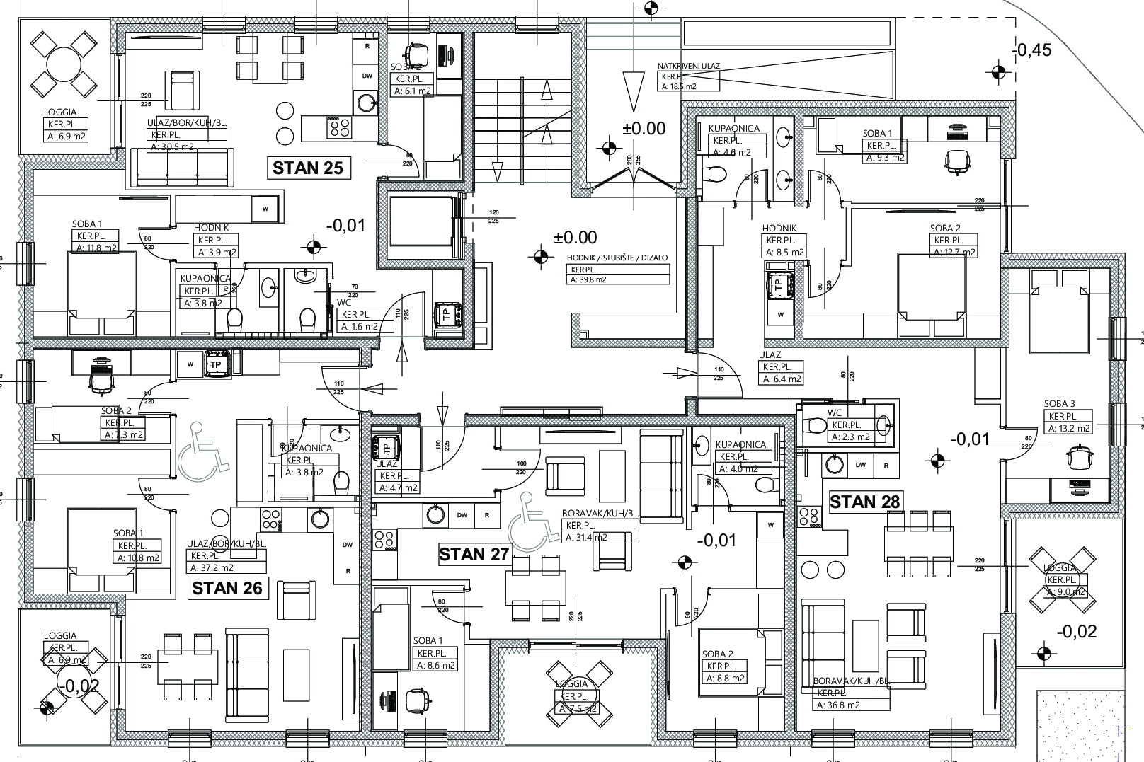
Stan 26
- Kvadratura: 75,16
- Sobnost: 3
Parcela ima izravan pristup s javno-prometne površine – ulica Hrvatske mladeži - k.č. br. 4095, k.o Zaprešić, s koje je organiziran i kolni i pješački pristup. Projektirana stambena građevina je nepravilnog tlocrta : zajednička podzemna garaža je unutar gabarita 45,10×57,65 m, zgrada 1 unutar gabarita 34,00x17,00 m, a zgrada 2 unutar gabarita 25,80x17,00 m. Katnost građevine je Pod+Pr+2+UK. Apsolutna nula +/-0,00 (pod prizemlja) izvest će se na 128,73 mnv prema geodetskoj snimci. Vrh atike nalazi se na koti cca 12,92 m iznad poda prizemlja. Pod prizemlja je na +0,45 m od pristupnog nogostupa, a pod podrumske etaže je na -3,15 m od poda prizemlja.
Vertikalna nosiva konstrukcija se sastoji od sistema nosivih AB zidova koji se pružaju u oba smjera. Horizontalnu nosivu konstrukciju čine armiranobetonske ploče oslonjene na sistem nosivih zidova. Građevinu je predviđeno temeljiti temeljnom pločom debljine 50 cm, i armirati prema statičkom proračunu. Nosivi zidovi su armiranobetonski debljine 20 cm. Stopne ploče su armiranobetonske debljine 20 i 25 cm. Pregradni zidovi u stanovima će se izvesti po sistemu Knauf, debljine 12,5 cm. Pregrade i vrata spremišta u podrumu će biti ožičene na metalnim okvirima. Ostala vrata na spremištima sukladno stupnju zaštite od požara.
Krov će biti blagog nagiba, s pokrovom od hidroizolacijske folije.
Stambena građevina će se toplinski i zvučno izolirati. Svi zidovi, podovi, stropovi i krov izvest će se primjereno tipu i zahtjevu konstrukcije. Svi podovi će se izvesti kao plivajući sa slojem elastificiranog ekspandiranog polistirena i cementnim estrihom. Završna obloga podova su protuklizne keramičke pločice lijepljene fleksibilnim ljepilom i parket. Svi vanjski otvori (prozori i balkonska vrata) izvest će se od pvc profila sa izo staklom niske emisije.
Slobodni dio čestice će se ozeleniti sadnjom ukrasnog bilja , pristupne i parkirne površine asfaltirati, a nogostup obraditi betonskim opločnikom.