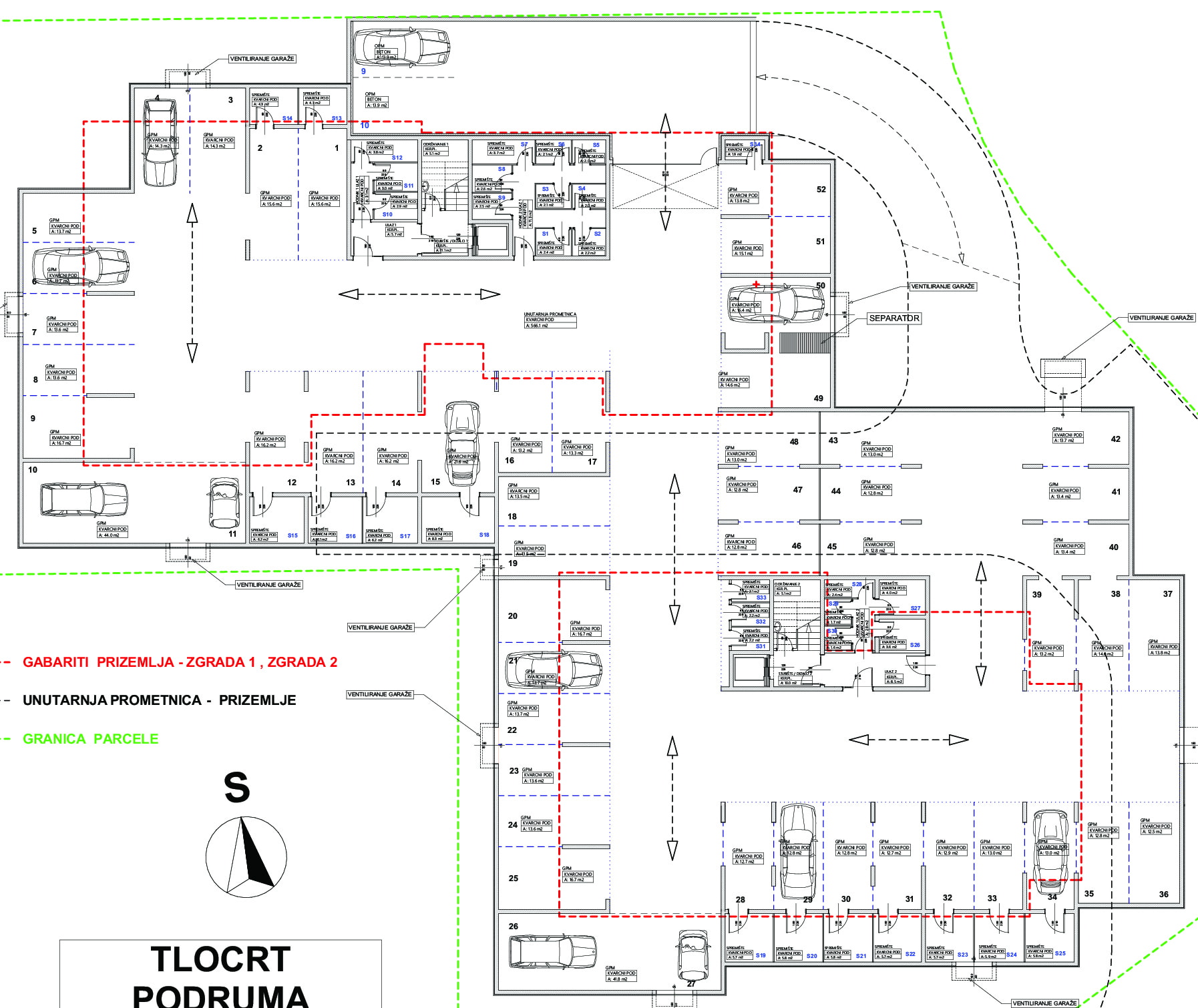
Zgrade

Parking zgrada 1
-
PM 01
-
PM 02
-
PM 03
-
PM 04
-
PM 05
-
PM 06
-
PM 07
-
PM 08
-
PM 09
-
PM 10
-
PM 11
-
PM 12
-
PM 13
-
PM 14
-
PM 15
-
PM 16
-
PM 17
-
PM 18
-
PM 19
-
PM 46
-
PM 47
-
PM 48
-
PM 49
-
PM 50
-
PM 51
-
PM 52
Parking zgrada 2
-
PM 20
-
PM 21
-
PM 22
-
PM 23
-
PM 24
-
PM 25
-
PM 26
-
PM 27
-
PM 28
-
PM 29
-
PM 30
-
PM 31
-
PM 32
-
PM 33
-
PM 34
-
PM 35
-
PM 36
-
PM 37
-
PM 38
-
PM 39
-
PM 40
-
PM 41
-
PM 42
-
PM 43
-
PM 44
-
PM 45
